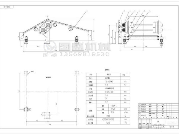
振动脱水筛怎么制作

1、无转动零件,无需加润滑油;
2、结构简单,维修方便,经久耐用,故障率低;


3、振动器运用了共振原理,双质体临界共振状态工作,所需驱动功率小,在启动时无大的启动电流,噪声低;
4、振动器启动后,振幅瞬时即可达到工作稳定值。停车时,它的振幅瞬时即可消失,平且允许在额定电压、电流和振幅下直接启动和停车。

5、筛体的激振或振幅可调,可以通过改变筛体的激振力(调节激振)来控制筛下产品粒度,对于保证不同结晶粒度矿石的精矿品味是非常有益的;
6、在筛体振动的同时,筛片的筛条之间也产生相对的颤动,筛片缝隙不易堵
上一篇:弛张筛筛分效果 下一篇:圆振动筛在矿山铜矿行业的应用











